-
[참고] 포르투갈 우유곽집일상 끄적/집짓기 기록 2023. 9. 10. 16:13
포르투갈의 흰 우유곽처럼 생긴 집이다. 아름답다.

경사지에 지어진 집인데 아랫쪽을 띄우는 방식이 독특하다. 우리 땅도 경사지이니 고려해볼 법한데 좀 과감한 편이라서 국내에서 가능할지는 모르겠다. 벌레같은거도 좀 걱정되긴하다.
그리고 또다른 특징은 통풍을 할 수 있는 여닫는 창이 아닌 뷰와 채광을 위한 창으로 설계했다는 점이다. 여닫기 위한 중간 프레임을 생략하니 미적으로 우수하다. 요즘은 환기장치를 별도로 두는 편이고 우리나라도 미세먼지가 심해서 직접 환기가 어려운 계절이 많이 있으니 의미가 있어보인다.

일단 눈에 들어온건 집에 진입하기 위한 주차장이다. 경사지에 주차장을 아래에 이렇게 설계하고 약간의 계단을 통해 집으로 올라도록 설계했는데 우리 땅에도 적용할 수 있지 않을까 생각한다. 차 오른쪽에 문은 창고이다.

우유곽처럼 예쁜데 건축가님 의견으론 우리나라의 기후를 고려하면 처마를 꼭 하라고 하신다. 디자인적으론 좀 아쉽긴한데 극복할 방법이 있지 않을까?

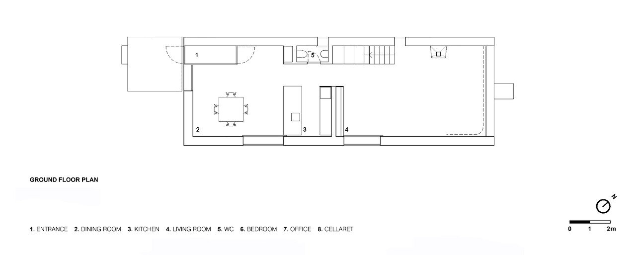
1층이 21평인데 왼쪽 출입구부터 D/K/L 구조로 만들어져있다. 거실을 별도의 공간으로 분리하는 구조라고 한다. 1층에 방을 1개 두기 마련인데 이걸 포기하고 과감하게 뻥 뚤린 공간을 만들었다.

여기가 현관인데 보통 중문으로 분리를 하는데 유리로 바람만 막도록 만들었다. 개방감을 주고 좋은 것 같다. 현관문 왼쪽으로 블라인드를 내렸다고 생각할 수 있는데 그렇지 않다. 벽이고 아랫쪽만 고정된 창을 낸 것이다.

요런 느낌이다. 현관 옆 바로 식탁. (D)

그리고 그 옆 주방이 이렇게 거실과의 공간을 분리한다.

여기서 딱 나가면 거실이 이렇게 나타나는데 창문을 액자처럼 구성했다. 커튼 레일을 위로 숨겨놨는데 유럽에서 많이 하는 방식이라고 한다. 커튼이 창을 가리지 않고 옆으로 뺄 수 있도록 구성했다.

거실에서 주방을 바라보면 이런 느낌이다. 계단에 난간을 넣으라고 하신다. 없으면 준공이 안된다고 한다..

계단을 올라가면 이런 공간을 마주한다. 왼쪽이 계단 올라오는 공간

책상 마저도 이런식으로 넣어서 깔끔하게 하는게 포인트

참고
이현욱 건축가님 유튜브 : https://www.youtube.com/watch?v=iGLoZqDfR6U&t=405s
'일상 끄적 > 집짓기 기록' 카테고리의 다른 글
집짓기 전에 가보기 - 소재 라이브러리 "콩크" (0) 2023.11.02 [참고] 좋은 것, 정말 싫은 것 몇 가지씩 정리 (0) 2023.09.11 바닥재 참고 - 콩자갈 (0) 2023.05.22 내부 공간 참고 - 단차를 통한 공간 분리 (0) 2023.05.21 외부 참고 - 벽돌 영롱 쌓기 (0) 2023.05.21